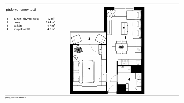
Rádi bychom vám nabídli světlý a útulný byt 2 + kk o užitné ploše 47 m², situovaný v 8. podlaží panelového domu, který se nachází na Třídě Edvarda Beneše v Hradci Králové. Tento byt je ve velmi dobrém stavu a je ideální volbou pro jednotlivce nebo pár, kteří hledají komfortní bydlení v blízkosti centra města.
Dispozice bytu nabízí příjemné a vzdušné prostory s výhledem na okolní zeleň. Součástí bytu je také lodžie, kde můžete příjemně v klidu relaxovat. V bytě je k dispozici komora na patře, což poskytuje navíc úložný prostor pro vaše potřeby.
Dům je vybaven dvěma výtahy, což je výhodou obzvlášť při stěhování větších kusů nábytku. Bezpečnostní prvky jako vchod na čip a automatické otevírání dveří vchodu přispívají k pocitu bezpečí a pohodlí.
Lokalita, ve které se byt nachází, je velmi vyhledávaná. V blízkém okolí najdete veškerou občanskou vybavenost, včetně obchodů, restaurací, polikliniky a nákupního centra. Díky skvělé dostupnosti MHD a silnice se snadno dostanete do centra města nebo na jiné důležité cíle.
Celkově se jedná o ideální nemovitost pro ty, kteří hledají pohodlné bydlení s veškerým komfortem na dosah ruky. V případě zájmu o prohlídku nás neváhejte kontaktovat.


















