Rádi bychom vám tímto nabídli prostorný byt 3+kk na třídě Edvarda Beneše v Hradci Králové který bude v lednu 2026 převeden do osobního vlastnictví. Byt je po rekonstrukci v r. 2020: nové jádro, koupelna, WC, propojení kuchyně s obývacím pokojem, nové podlahy, kuchyň, elektrické rozvody. Na domě je plánována revitalizace a zateplení v r. 2026, které se propíše do nižších spotřeb energií. Součástí budou venkovní žaluzie na 3 oknech na JZ. Revitalizace se neprojeví nijak významně do příspěvků FO – max o 5 Kč/m2.
K příjemnému a komfortnímu bydlení přispívá 2x lodžie a okna do tří světových stran.
Tento byt je ve velmi dobrém stavu a je ideální volbou pro pár nebo rodinu, kteří hledají komfortní bydlení v blízkosti centra města.
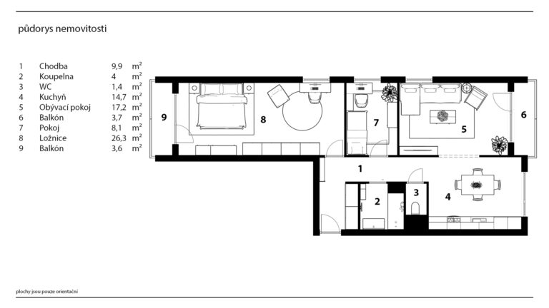
Dispozice bytu nabízí příjemné a vzdušné prostory, kde si každý člen rodiny přijde na své soukromí. Ložnice je opravdu prostorná – viz. přiložené půdorysy a je možné ji rozdělit na dva menší pokoje. K bytu patří sklep.
Dům je vybaven dvěma výtahy.
Lokalita, ve které se byt nachází, je velmi vyhledávaná. V blízkém okolí najdete veškerou občanskou vybavenost, včetně obchodů, restaurací, polikliniky a nákupního centra. Díky skvělé dostupnosti MHD a silnice se snadno dostanete do centra města nebo na jiné důležité cíle.
Celkově se jedná o ideální nemovitost pro ty, kteří hledají pohodlné bydlení s veškerým komfortem na dosah ruky. V případě zájmu o prohlídku nás neváhejte kontaktovat.


























